
Projet Liberté
Une maison individuelle au coeur de Bordeaux
Chez Hestia Interiors, nous concevons des espaces qui allient esthétique et praticité. Pour le projet Liberté, nous avons imaginé un projet de rénovation de A à Z, pour repartir d'une page blanche et faire de cette maison de 100m2 un véritable cocon !


Brief du projet
Optimiser l’espace sans perte de surface :
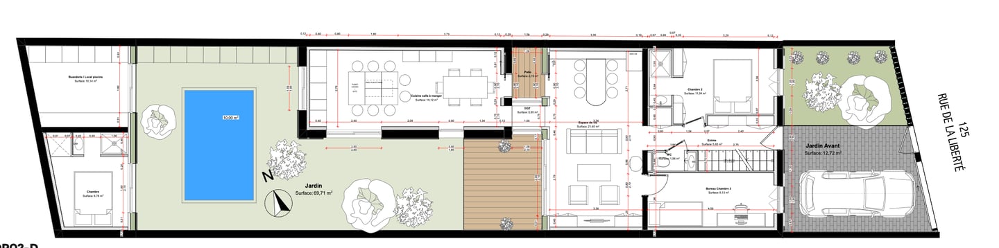
Création d’un étage en utilisant les combles existants pour une suite parentale avec salle d’eau.
Isolation complète de la maison sans sacrifier de m².
Structurer intelligemment les espaces :
Séparation claire entre zone nuit (deux chambres, dont un bureau) à l'avant et zone jour (salon, cuisine, salle à manger) à l'arrière.
Intégration d'un patio central pour maximiser la lumière naturelle.
Valoriser la dépendance existante :
Transformation en quatrième chambre indépendante.
Création d'un local piscine et buanderie.
Créer un jardin fonctionnel et accueillant :
Terrasse en bois pour recevoir.
Coin vert pour conserver un espace nature.
Piscine à proximité de la dépendance.
Projet Liberté, une rénovation sur mesure au cœur de Bordeaux.
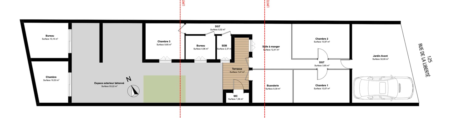
Nos clients ont acquis une maison individuelle de 100 m² avec une ambition forte : la transformer intégralement pour en faire un lieu de vie moderne, fonctionnel et lumineux.
Maison existante : ancienne, cloisonnée, peu optimisée.
Volonté : tout réinventer en conservant le cachet existant et en créant de nouveaux volumes.
Démolition intérieure quasi-totale réalisée par les clients.
Présence d’une dépendance au fond du jardin à revaloriser.
Ce projet de rénovation est un exemple parfait de conception de projets et d’aménagements sur mesure pensés pour répondre aux besoins d’une famille moderne.
Enjeux du projet
Conception
Le projet de rénovation sur mesure a nécessité :
3 mois de conception de projets :
Analyse des besoins des clients.
Études de faisabilité et plans détaillés.
Optimisation des volumes et circulation intérieure.
2 mois de sélection des entreprises :
Comparatif approfondi des devis.
Choix des partenaires pour assurer qualité, respect des délais et maîtrise budgétaire.
Cette étape de conception et d'aménagements sur mesure a été clé pour assurer la réussite globale du projet.









Réalisation & résultat
8 mois de travaux intensifs :
Transformation complète de la maison.
Création de nouveaux volumes adaptés aux usages quotidiens.
Finitions de qualité sur l’ensemble du bâti et des extérieurs.
Livraison prévue en novembre :
Découvrez bientôt le résultat final de ce projet de rénovation à Bordeaux, où conception sur mesure et aménagements personnalisés redonnent vie à une maison pleine de potentiel !




